No place like home
Helping You Find Where To Live
Buying a home is a big investment with a lot of moving parts, so it’s no surprise that you might have some doubts along the way. Approach the process with help of local expert, Saige Real Estate with years of experience and knowledge of the area our team will be sure to help no matter your circumstance.
1011 Cross StreetLancaster, SC 29720




Mortgage Calculator
Monthly Payment (Est.)
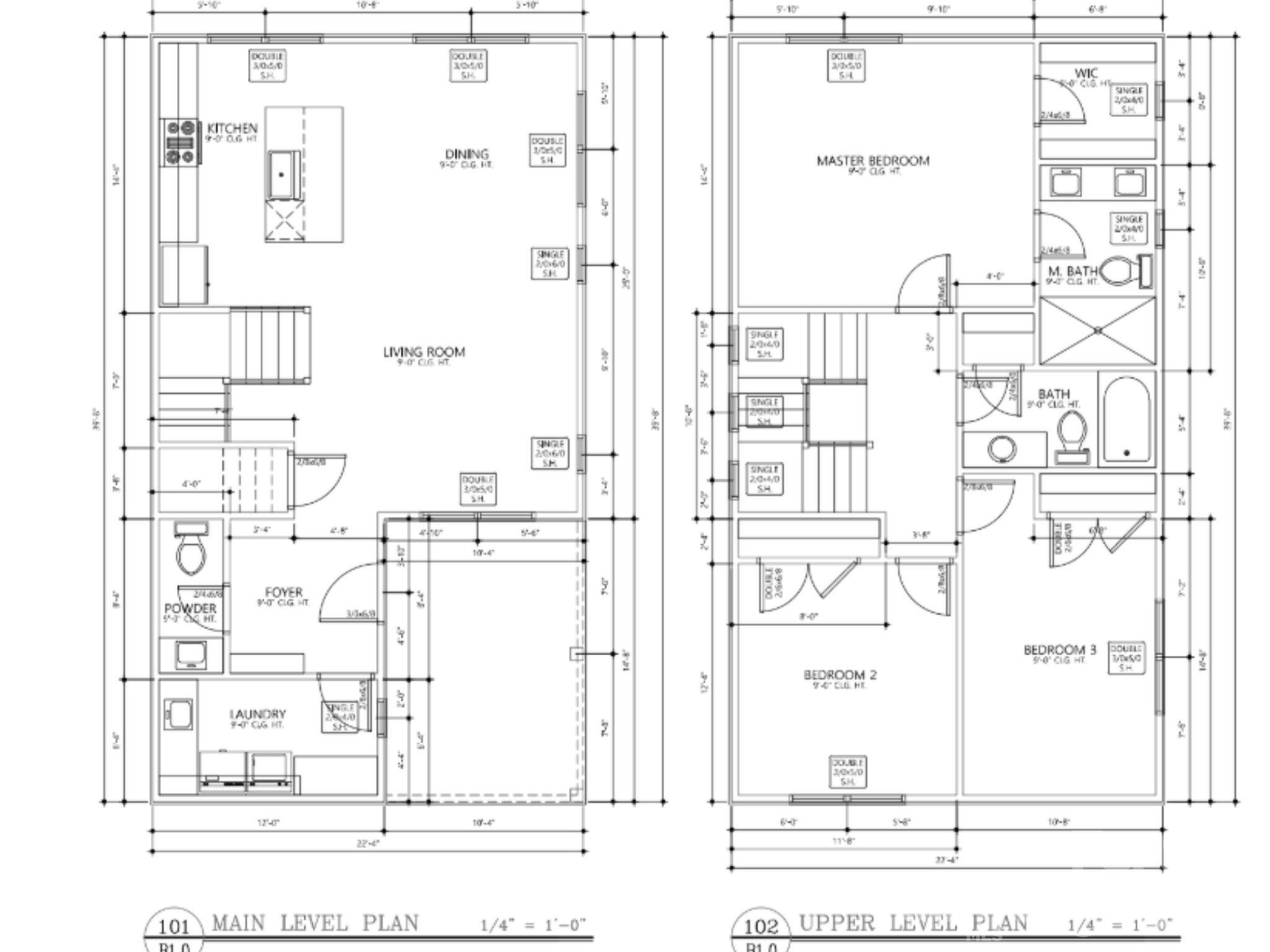
$1,296This brand-new construction home offers a rare opportunity to own a modern, three-bedroom, two-and-a-half-bathroom residence for under $300k just minutes from the heart of downtown Lancaster. Currently under construction and scheduled for completion by the end of May, this home features a thoughtful open-concept layout designed for contemporary living. The main level includes a welcoming foyer, a convenient powder room, and a spacious living area that flows seamlessly into the dining space and a modern kitchen equipped with a center island. Upstairs, you will find a large primary suite along with two additional bedrooms, providing ample space for family or guests. Situated in a rapidly revitalizing pocket of the city, this property is surrounded by several other new construction projects, making it an ideal choice for buyers looking to build equity in an improving area. Enjoy the benefits of a fresh start with all the peace of mind that comes with new craftsmanship, all while staying close to the vibrant shops, dining, and culture of the downtown district.
| 2 days ago | Listing first seen on site | |
| 2 days ago | Listing updated with changes from the MLS® |
Listings courtesy of Canopy MLS as distributed by MLS GRID. Based on information submitted to the MLS GRID as of {last_incremented_at}. All data is obtained from various sources and may not have been verified by broker or MLS GRID. Supplied Open House Information is subject to change without notice. All information should be independently reviewed and verified for accuracy. Properties may or may not be listed by the office/agent presenting the information. Some IDX listings have been excluded from this website. Properties displayed may be listed or sold by various participants in the MLS. ©2026 Canopy MLS.
The Digital Millennium Copyright Act of 1998, 17 U.S.C. § 512 (the “DMCA”) provides recourse for copyright owners who believe that material appearing on the Internet infringes their rights under U.S. copyright law. If you believe in good faith that any content or material made available in connection with our website or services infringes your copyright, you (or your agent) may send us a notice requesting that the content or material be removed, or access to it blocked. Notices must be sent in writing by email to DMCAnotice@MLSGrid.com. “The DMCA requires that your notice of alleged copyright infringement include the following information: (1) description of the copyrighted work that is the subject of claimed infringement; (2) description of the alleged infringing content and information sufficient to permit us to locate the content; (3) contact information for you, including your address, telephone number and email address; (4) a statement by you that you have a good faith belief that the content in the manner complained of is not authorized by the copyright owner, or its agent, or by the operation of any law; (5) a statement by you, signed under penalty of perjury, that the information in the notification is accurate and that you have the authority to enforce the copyrights that are claimed to be infringed; and (6) a physical or electronic signature of the copyright owner or a person authorized to act on the copyright owner’s behalf. Failure to include all of the above information may result in the delay of the processing of your complaint.
Last checked - 2026-04-18 08:29 AM UTC
Did you know? You can invite friends and family to your search. They can join your search, rate and discuss listings with you.